The Jameh-Chin (Pleated Veil) Apartmentgo back to all projects
-
This project is presented in two separate sections of this website.
This section features the units on the 1st to 4th floors.About This project:
This residential project in Rasht consists of four flat units and one duplex on the upper floor.
In a city where façades are often either Roman-style or generic modern, we aimed to create a design rooted in its cultural setting. While pitched roofs are part of Gilan’s vernacular, in dense Rasht the roof garden is more valuable—addressing the lack of parks and open yards caused by high groundwater levels and parking needs.
Instead of repeating a standard modern façade, we looked to local imagery for inspiration. The pleated, colorful skirts of Gilan’s traditional dress inspired zigzag window forms, while colored glass recalled the nostalgic stained panes of old houses.
Just as the people of Gilan adorn themselves in vibrant, pleated garments, our building, too, was dressed with zigzagging windows and colorful glass.
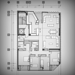
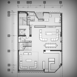
In the design of the flat units, a north-facing balcony was placed adjacent to the kitchen. On the first and second floors, this balcony remained connected only to the kitchen. However, on the third and fourth floors—where the height reduced visibility from the street—the balcony was repositioned so it could serve both the kitchen and the living room. This adjustment was also reflected in the façade articulation.
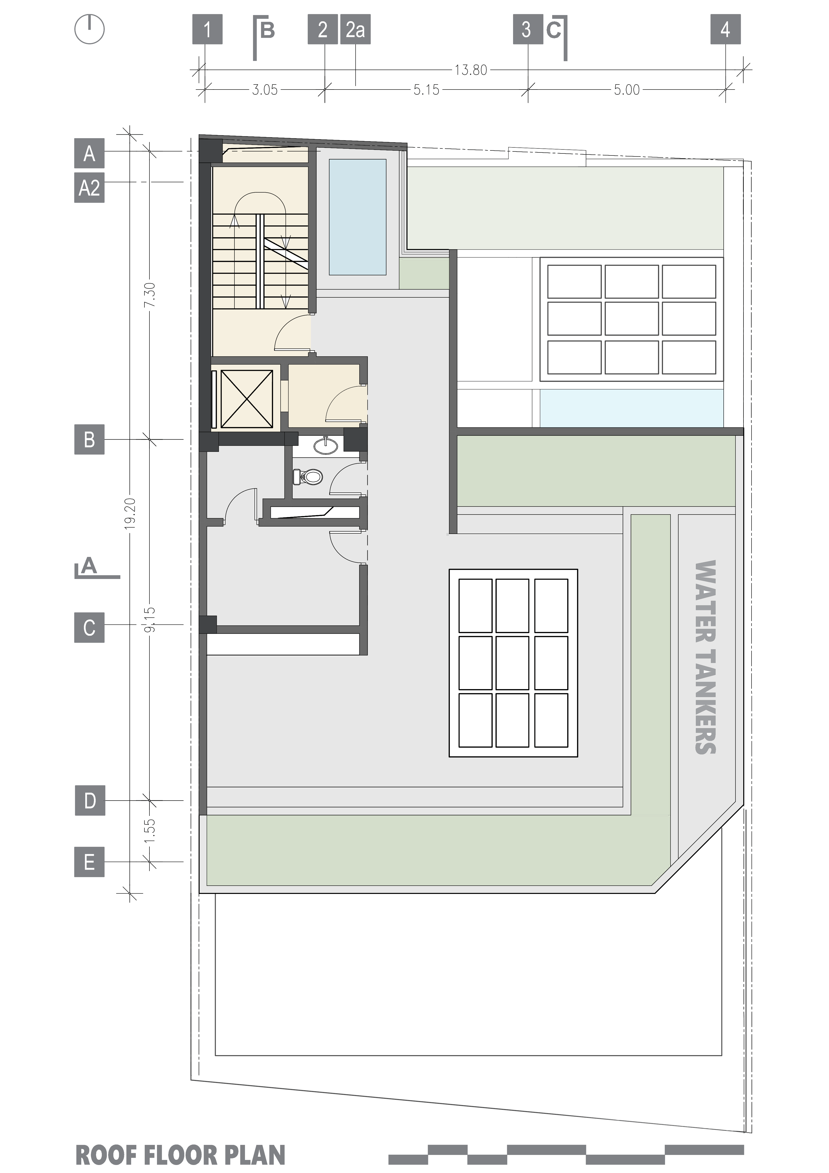
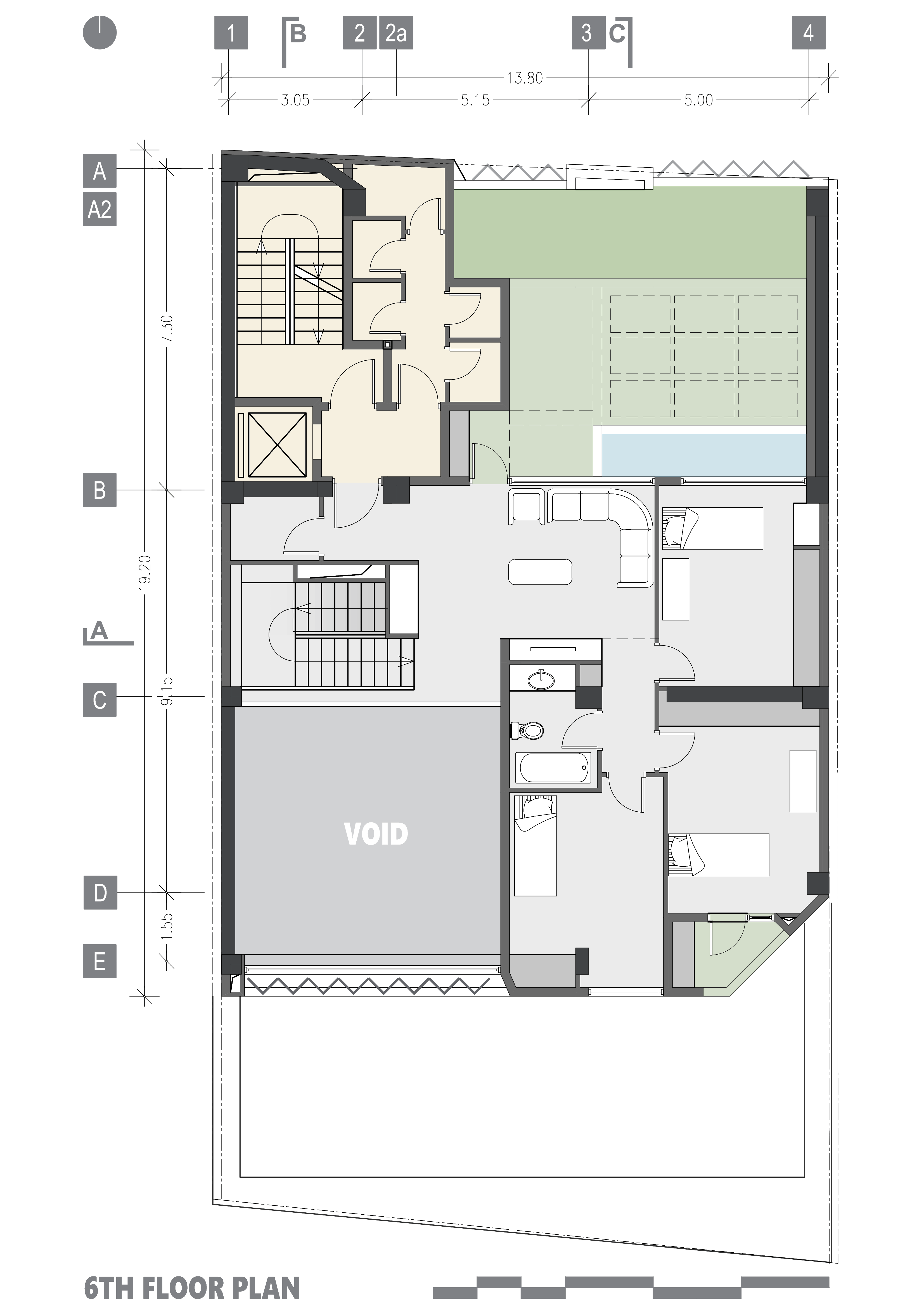
For the duplex, a skylight was introduced to illuminate the living room, opening onto the private courtyard of the upper floor. This skylight was combined with a shallow glass-bottomed pool, allowing natural light to filter in while enriching the space with a distinctive spatial quality.
-


stage one
The project was located at the corner of a side street. By placing the vertical circulation core on the neighbor-facing side, we minimized direct overlooking into the adjacent building.
stage two
The balconies were designed in response to the alley’s orientation. Since the upper unit was not overlooked by neighbors, it was given a spacious balcony.
stage three
On the lower floors, where passersby could easily see into the balconies, they were treated as extensions of the kitchen. On the higher floors, the balconies connected to the living rooms.
stage four
Just as the people of Gilan wear traditional pleated and colorful skirts, our building was dressed with zigzagged, pleated windows and nostalgic stained glass.
-
-



-
-
-
-


-

-
-

-
-
-
-

-

-
-
-
-
-
-


-

-

-
-

-
-
-
-
-
-
-
-
-
-
-
-
-
-


















































