A villa near a neighbourgo back to all projects
-
About the Project:
The project was located on a plot of approximately 240 square meters. Since part of the land belonged to natural resources, the building had to be placed in the middle. Next to it, there was another villa with west-facing windows, which had a full view of the project.
We had two options: place the building on the eastern part, capturing western light, or place it on the western part, facing the neighbor's windows. We chose the latter. The challenge then was to limit the neighbor's view.
Trees and plants were considered but not economically viable. Using a wall was another option, but a high wall required a supporting structure, which was costly. Our solution was to integrate the wall's supporting structure with the building's structure, allowing for a wall to control the view and space for planting trees.
We reversed the common villa layout: public zones on the upper floor for scenic views and private zones on the ground floor for privacy. We created an opening on the ground floor, resulting in a covered balcony on the ground floor and an open balcony on the second floor, connecting the northern and southern yards.
-
-
-
-
context
the neighbour located near our building
-
viewing each outher
we should control the view
-
step 1 : block the view
placing a wall between buildings, controlling privacy and view
-
step 2: yards
connecting two yards
-
step 3 : a place for trees
converting the wall between buildings into a place for trees, creating suitable atmosphere
-
step 4 : final form
shaping the building mass, designing the form



-



-



-

-
-

-
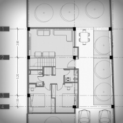
ground floor plan
-
first floor plan


























