A villa in karajgo back to all projects
-
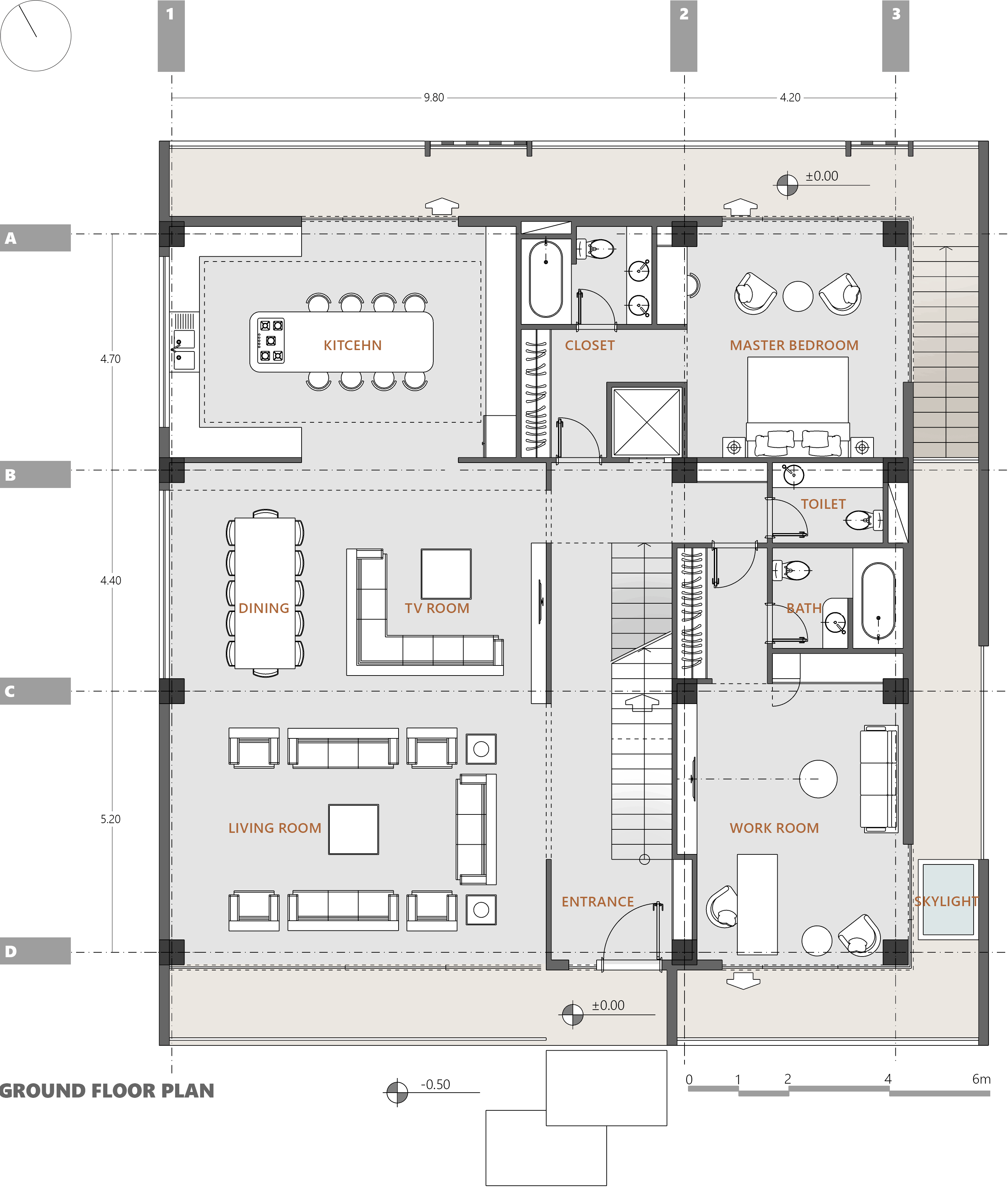
The Introverted Villa
The increasing prevalence of suburban villas highlights the need for spaces that foster a vibrant living experience. The density of urban environments and the lack of connection to the outdoors fail to provide this essential quality.
In response to this need, our approach to this project, situated on a square plot of land, began with the creation of a U-shaped boundary. This boundary not only defines the structure but also incorporates access points to the basement and roof, effectively allocating space for open areas.
Subsequently, we delineated the public zones (living room, kitchen, etc.) from the private zones (bedrooms, etc.). The leisure areas (basement and roof) and living spaces (ground and first floors), linked by vertical connections and integrated with the outer boundary, create a fluid space that embraces the user.
By introducing a color contrast between the volumes, the building retains its cubic form while striving to provide a high-quality response through this unique interplay of interior and exterior.
-
-
-
-
-





-
-
-
-
-













