A villa in joukoulbandango back to all projects
-
design process
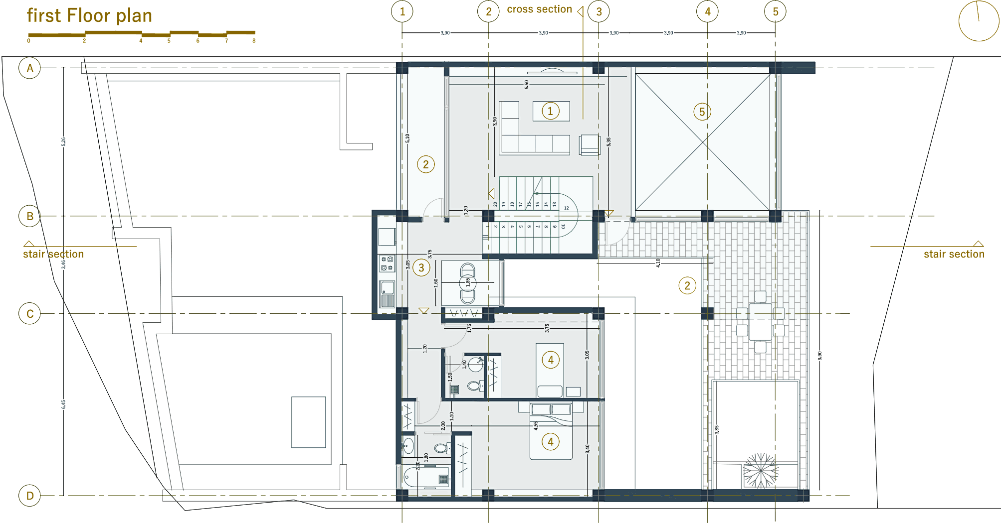
This project is located in Jokulbandan village, offering excellent views but with an east-west orientation. The design principles focused on ensuring all spaces had views of the eastern Saravan Forest and southern light for the living room.
We divided the volume into two parts, extending the living room eastwards with an empty space for southern light. This design allows the living room to benefit from both eastern and southern light.
The central space, initially created for functional purposes (southern light), was reimagined to add character, contrasting with the rest of the modern, minimalist project. This central area represents the blend of modernity and tradition, city and village, industrial life and nature.
By adding a water pond connected to the pool, we engaged both auditory and tactile senses. The western facade features solid walls due to climatic reasons, with the central space extension completing the design and achieving a suspended cabin form.
The client requested a semi-covered pool and balcony, which we achieved by covering the pool with a balcony and leaving part open for a tree, making the structural calculations challenging.
-
-
-
Dividing the house into two
Every house has two parts: living space and slipping space
We divided the house into two parts and separated these parts from each other
-
Forming and creating space
At first, because the living room received only the east sunlight, we provided the south sunlight by changing the volume.
Then, an intermediate space was placed between the two parts of the house. A space that connects two parts separated from each other: A space in between.
-
Reaching the final form
At first, because the living room received only the east sunlight, we provided the south sunlight by changing the volume.
"The space in between" is not just a place for commuting, not just a place that is supposed to connect two parts, but also as a place for bring things to happen. We considered the in-between space as the heart of the project.
Finally, we extended that in-between space by adding a balcony to it.










-
-


-
-
-
-












































