A villa between two treesgo back to all projects
-
about this project
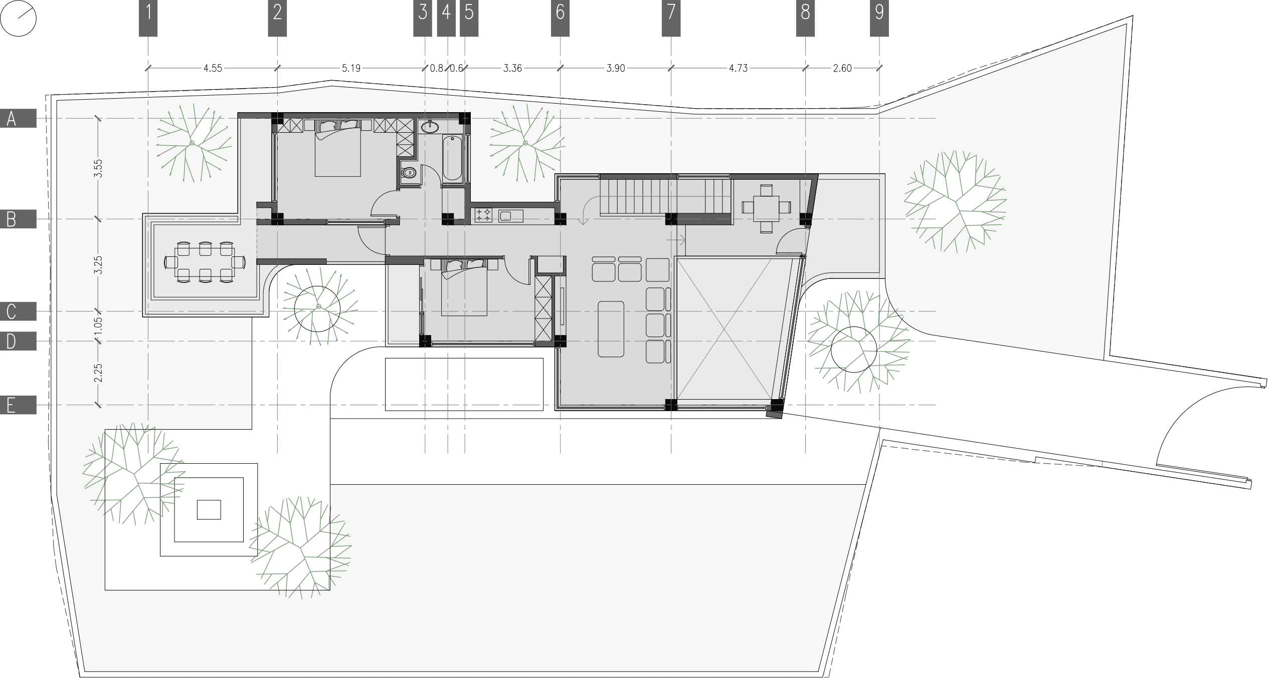
This project had a land area of about seven hundred square meters. A land with a narrow entrance. Half of the land of this project belonged to natural resources and was unbuildable. In the other half, which was a construction site, there were trees, two of which were old and large trees. Our first priority was not to cut down the trees to place the building on this land. The project should be designed next to the trees and in harmony with them.
The position of the old trees was such that one of them was placed in the entrance area. The position of the other tree was at the end of the field. We considered these two trees as two focal points and designed the project around these two points.
The path that connects these two focal points (the tree) was defined as a space-forming element. This element was considered as the primary core of the project and other spaces (living room, rooms, etc.) were placed around this route.
Since it had a view of green hills on one side, we arranged the placement of the rooms and living room in such a way that these spaces have a good view of these beautiful hills. And finally, the design process of this project went through, and "villa among the trees" was formed.
-
stage 0; context
"Location of trees" and "Constructable range" are specified
stage 1: trees as main points
We considered two large trees located in the project site as the main focal points.
stage 2: paths leading to focal points
The first path starts from the entrance and ends at the first tree. The other path ends at the second tree.
stage 3: turning the paths into the mass of the building.
Formation of main masses around the focal points in two main trees.
stage 4: connecting masses to each other
We have connected two separated focal points (trees) and formed a single mass.
stage 5: formation of the building
Residential spaces are placed around the masses and paths that were formed in the previous stages.
-


-


-
-








-
-
ground floor plan
first floor plan


























