A villa around a gazebogo back to all projects
-
about this project
The project was located in a villa town. Villas with repetitive and regular plans that have no creativity.
Before contacting us, the client had taken one of these plans from one of the architecture offices and intended to build it: a regular cubic building.
A small tree was also placed in the middle of this land, and that plan was such that it required the cutting of that tree.
The client's request was that "we want a villa with a pool in front and we also want a gazebo in our yard."
For us, however, the project was accompanied by two challenges: First, is it possible to assemble the building mass on the project site without cutting down the tree and destroying its life? And the second question was, "Basically, what is the definition of a gazebo?" Does the gazebo have to be in the form of a small wooden hut surrounded by greenery? Can't the gazebo be redefined in another way? And can't it be connected directly to the building?
Perhaps, the gazebo can be defined as: "a semi-open space for sitting next to trees and greenery". Now back to the first question, is it possible to have a "pergola" by sitting around the tree that was placed in the middle of the construction area?
We defined the pergola by creating a hollow and depression around that tree, creating an empty space. A gazebo that had a direct connection with the house and the pool.
-
-
-

-
stage 1: situation
there were a tree located in the middle
stage 2: client's needs
A villa with a gazebo in the yard. the tree had to be cut down in order to build it
-
stage 3: our answer
The villa and the gazebo were placed as positive and negative space. There was no need to cut down the tree
stage 4: final project
other places (such as swimming pool and entrance gate) were placed along the gazebo ( negative space ).


-
-

-


-







-
-

-
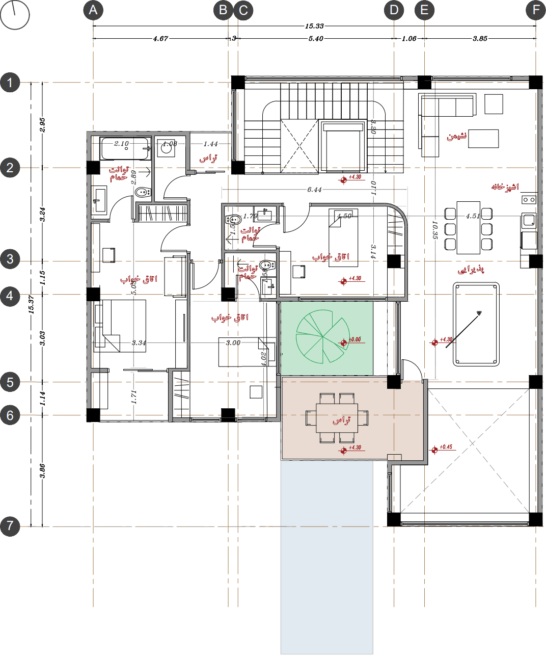
ground floor plan
-
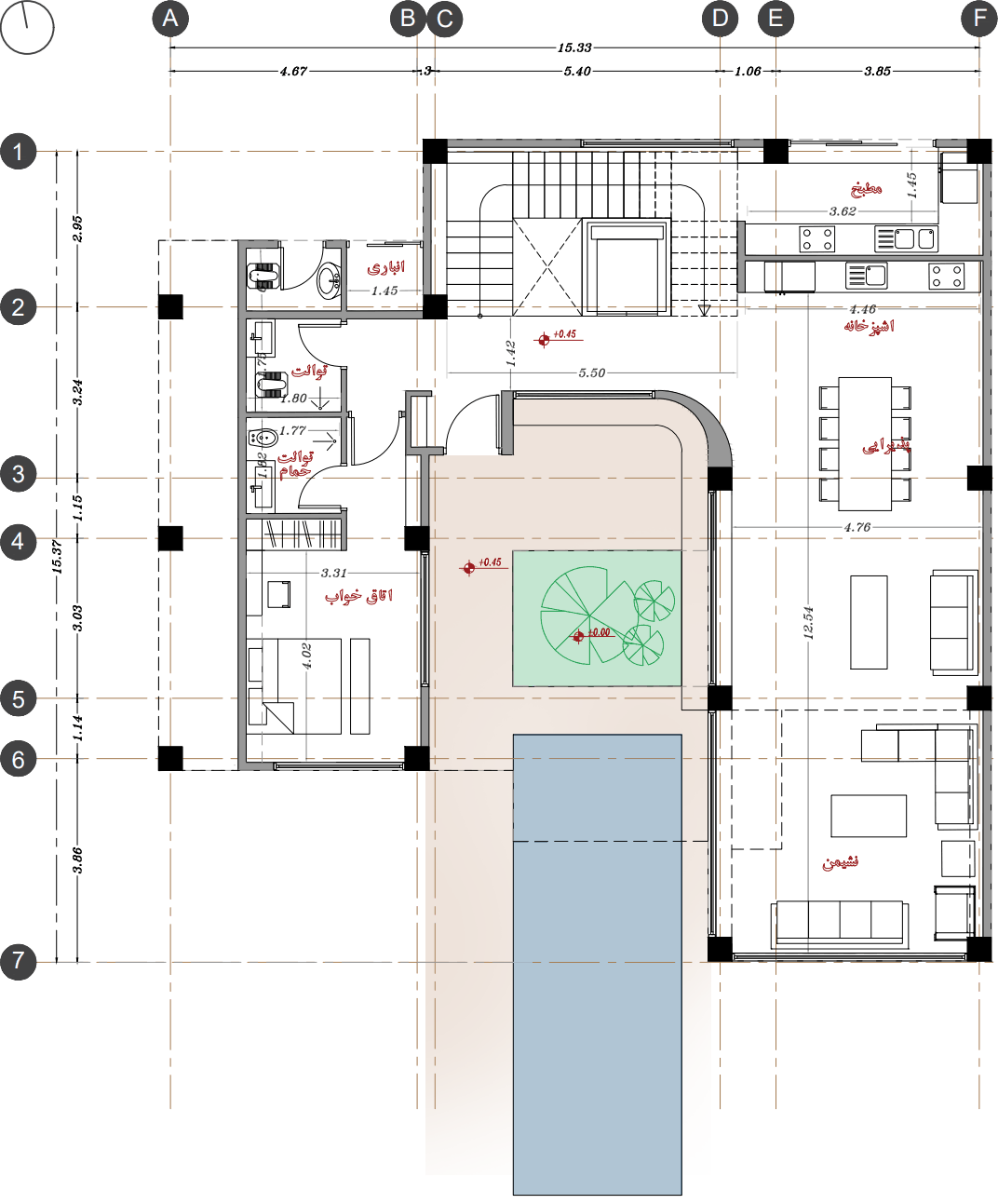
first floor plan


























