Two Regions, a Villa.. An interwoven housego back to all projects
-
In praise of the coexistence of regional Identities of diffrent parts of Iran
Iranian architecture has always been regional throughout history, featuring various historical patterns and ancient traditions. Based on this principle, we sought for each climate in different geographical regions to reflect its own culture and identities in its architecture, art, and way of life.
The project is located in the northern regions of Iran, and the client is a family from the central areas of Iran, whose request was the design of a modern and contemporary house. We began the design process based on the client's lived experience, the architectural pattern of their hometown, as well as the context in which the project was located.
Considering the presence of several old trees on the project site, we adjusted the orientation and overall volume of the building basedon the trees to avoid cutting them down.
A Home Where Past, Present, and Nature Intertwine
The concept of the project was based on the contrast between semi-public spaces (such as the living area, etc.) and semi-private spaces (such as the rooms, etc.), each with its own distinct form.
The first component of the volumes consists of the forms of sloped-roof cottages that are placed next to and on top of each other, symbolizing a house in the northern regions of the country. The semi-public space, featuring materials in the color of adobe and colored glass, reflects a symbolic representation of the traditional houses of Iran, particularly in the central regions.
The user entering from the outside first sees the cottages and then, in the next sequence, experiences a sense of Iranian houses and the traditional "Orsi" (Persian stained glass windows).
In conclusion, the project consists of the coexistence of the cottage form with a sloped roof found in the northern regions of the country and traditional Iranian houses with "Orsiii. This contrast is present not only in the exterior form but also in the interior design, so that all elements of the project come together to create a cohesive and unified whole.
-

-
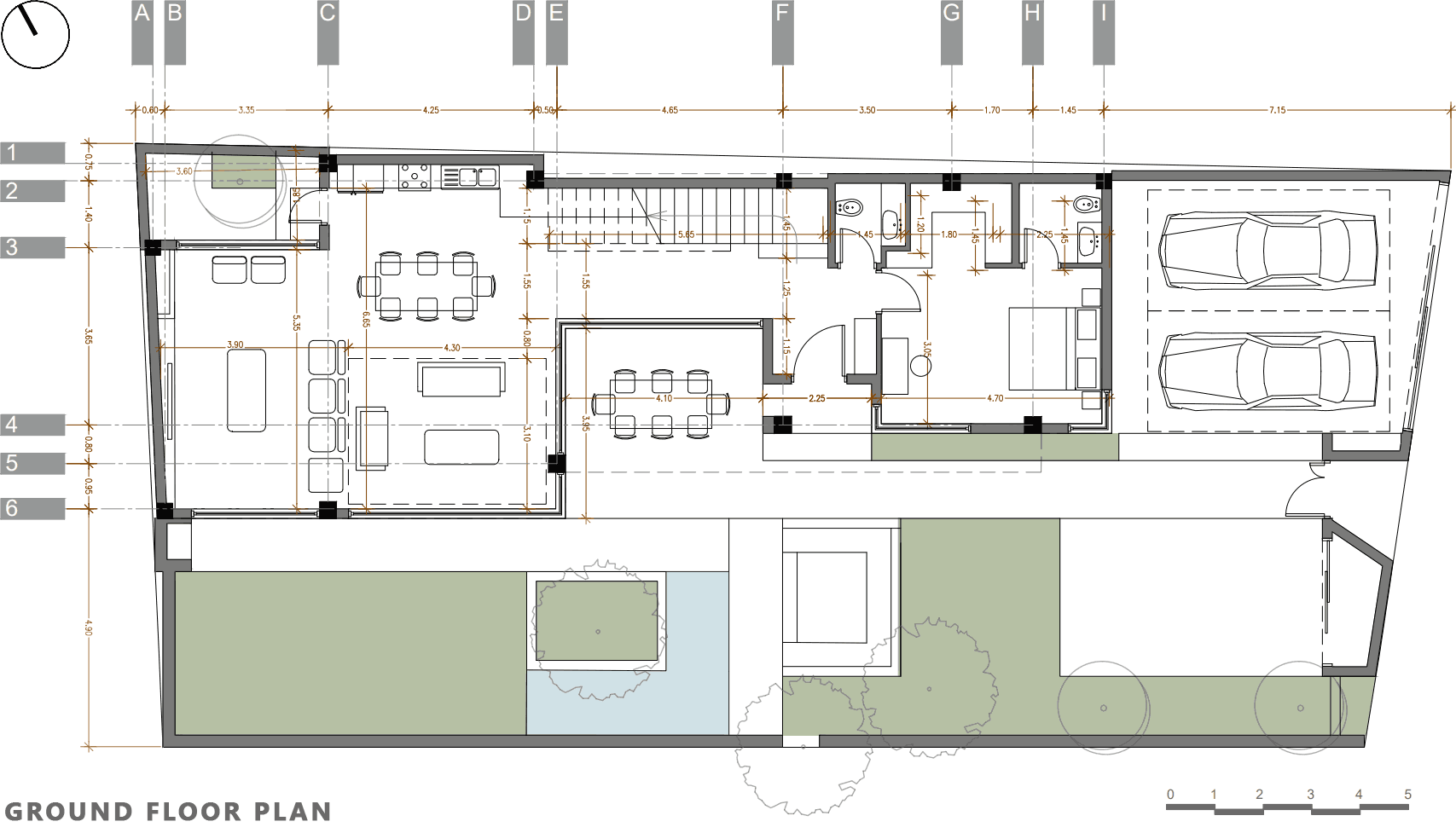
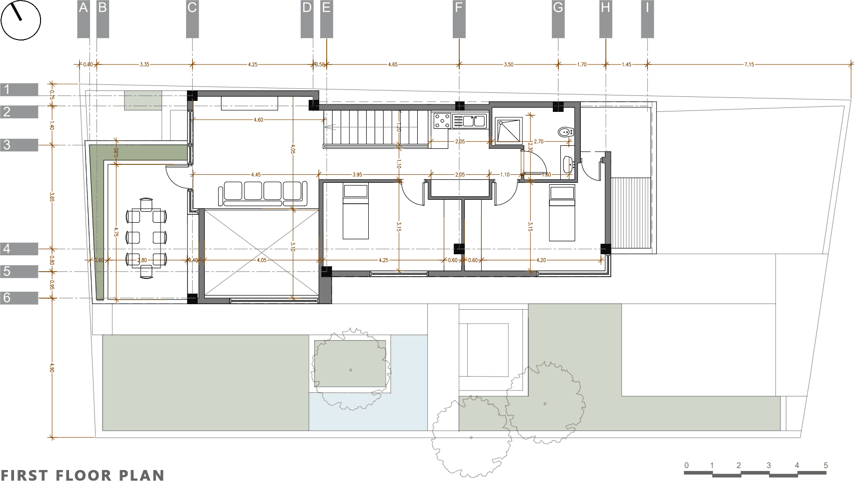
Every house has two parts:
public space (living room) and
private space (bedroom) -
This project was formed based on giving form to the public and private space of the house
-
We obtained the form of the private part from the
generic architectural pattern of northern Iran (houses with sloping roofs side by side). -
We obtained the form of the public part from the
general architectural paradigm of Iran (houses with tall and colored glass windows). -

-

-
-
-
-
-
-



-
-
-
-

-
-
-
-
-
-
-

-
-
-
-
-
-
-
-
-
-
-
-
-
-



-
-
-



-





-
-


-






























































