Tiny Home that Morphs to momentsgo back to all projects
-
More Than One, Less Than Two,
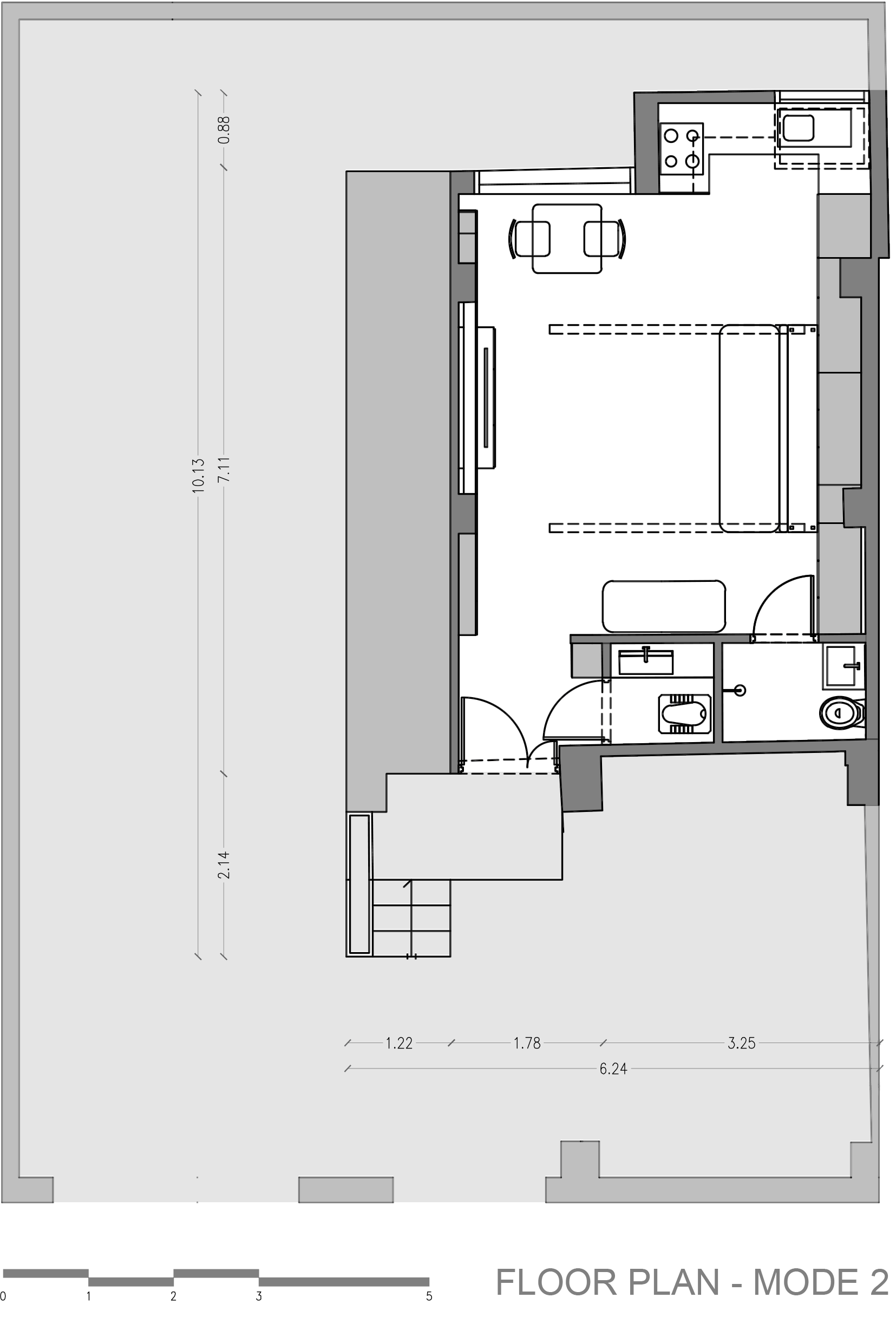
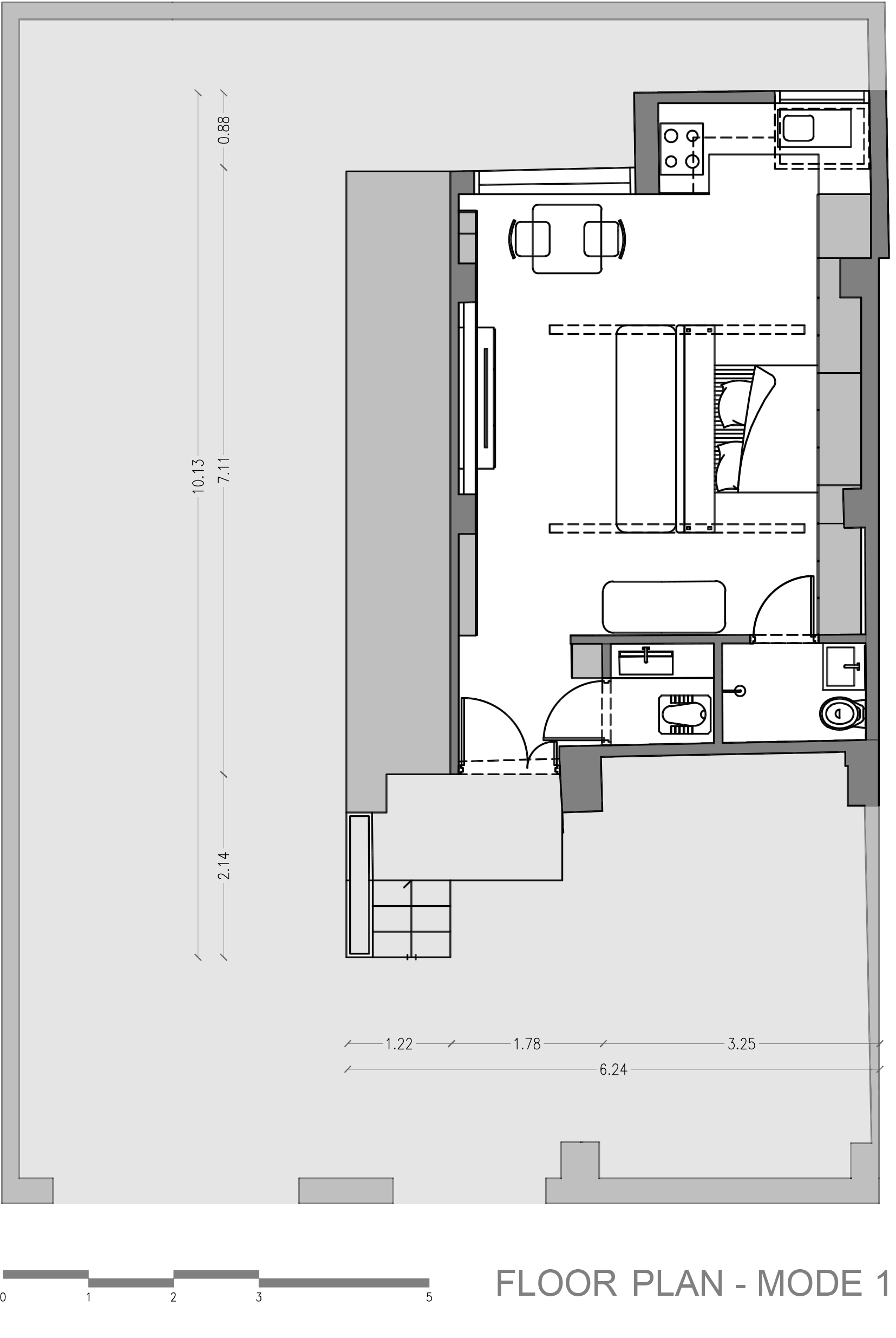
Where walls move, and life expandsSometimes, the space is large enough to easily design a two-bedroom home. Other times, it’s smaller, and we settle for just one bedroom. But there are cases where the area is so limited that even making it a one-bedroom unit doesn't solve the problem—neither the bedroom nor the living room ends up with usable dimensions.
But the reality is—at least in such a small unit—it’s rare for someone to need both the bedroom and the living room at the exact same time. At night, when it’s time to sleep, the living room becomes unnecessary. And during the day, especially when hosting guests, the bedroom typically isn’t used.
That’s where the idea began: What if the bedroom and the living room didn’t have fixed boundaries? What if we could expand or shrink each space depending on the need?
To bring this idea to life, we built a metal frame, mounted wheels underneath it, and installed a ceiling-mounted track to guide a movable wall. We commissioned a custom wheeled sofa from a local craftsman and installed a folding bed to further optimize the flexibility of the space. This way, despite the small size of the unit, we managed to include the core features of a livable home.
In the kitchen area, we faced another limitation: due to municipal regulations, building a masonry or concrete ceiling was not permitted. So instead, we designed a lightweight structure using steel tubing and polycarbonate sheets—a solution that was not only light and affordable, but also allowed natural light to pass through.
-
-
-
-
-
Phase 0 : initial state
The unit was located on the ground floor of a residential building, next to the parking area and storage rooms.
-
Phase 1 : Spatial Organization
The bathroom was relocated to the non-lit area, while the kitchen was positioned in a corner with irregular geometry.
-
Phase 2 : Adaptive Partition
A sliding partition was added, allowing the space to shift between living and sleeping modes, two layouts within one room.
-
Phase 3 : Final Arrangement
The workspace, wardrobes, and entrance zone were designed in harmony with the movable wall, creating a compact yet flexible interior.





-
-
-
















