Villa + beauty salon + music room go back to all projects
-
About the project
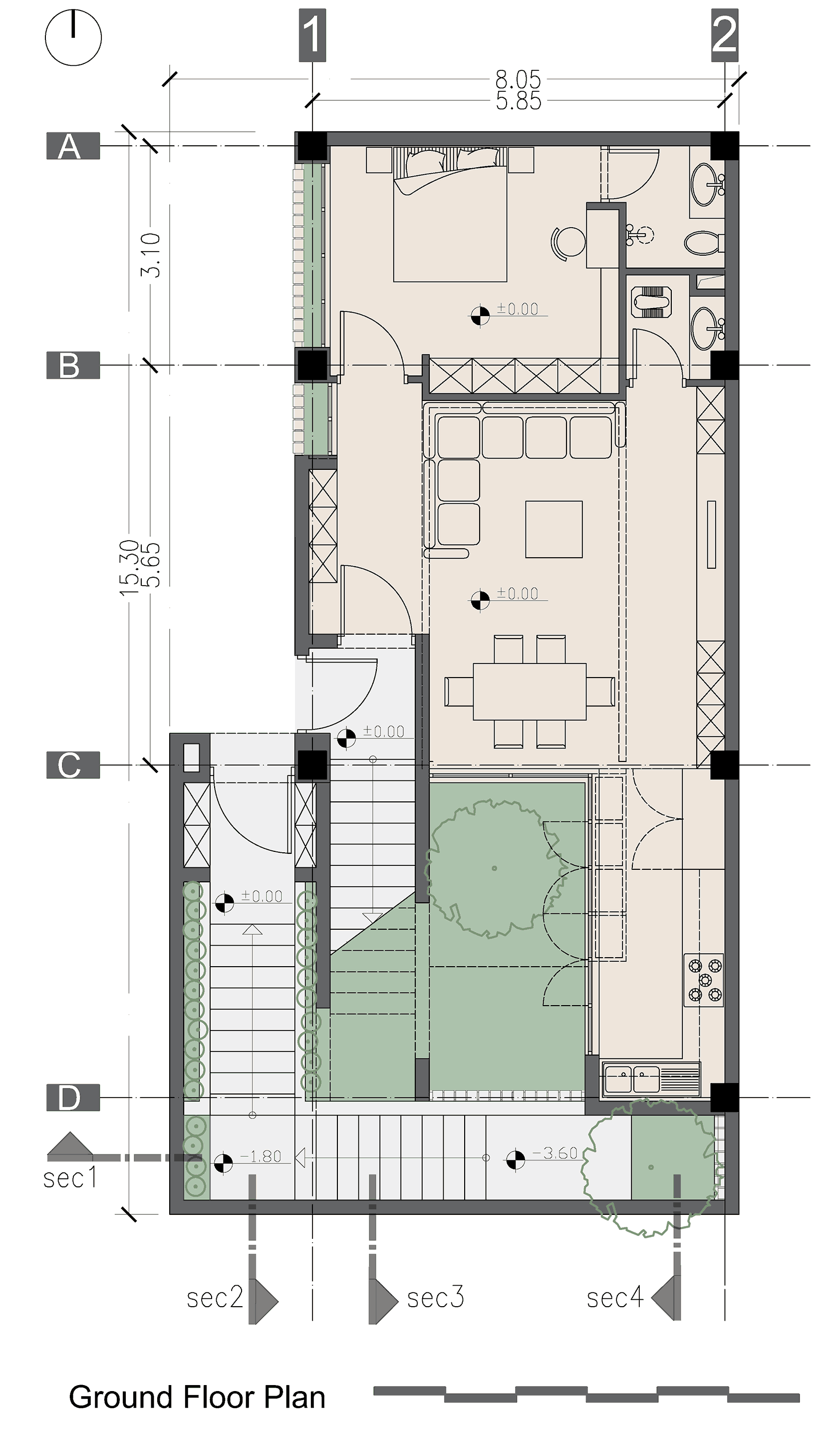
The client with a relatively small land (one hundred square meters) in a land located at the corner of a dead end alley. wanted a residential building (sixty square meters) plus a beauty salon (with a separate entrance) under the ground. Along with a house with an open yard and a kitchen with a glass roof. ...
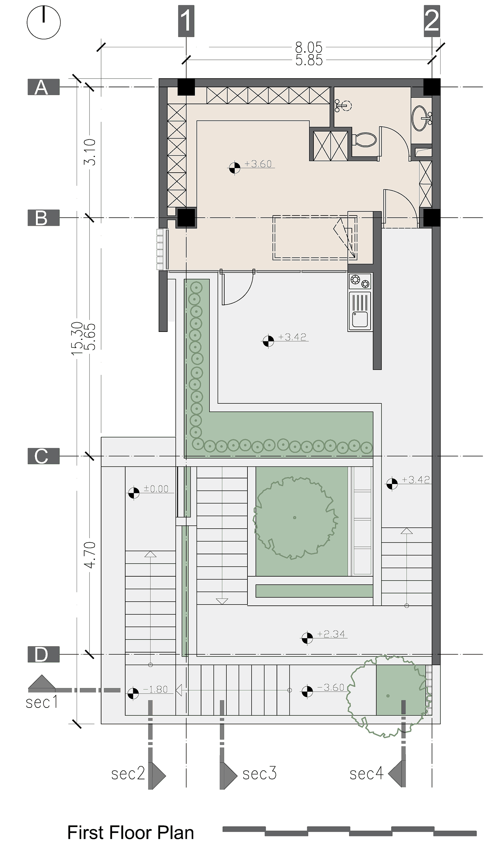
And also on the upper floor, a special bedroom, which can be used as a music school during the day, so that while directly connected to the residential house, it also has independent access. and With a folding bed in the closet can have its normal usagee (bedroom) at night.
We were on the side of a challenging project that had all kinds of uses (residential, hair salon, private music school).
The occupation level was 80% underground and 60% on the ground floor. The bedroom on the last floor was occupied by 40%.
We considered two entrance doors. An independent entrance to the underground and another entrance that opened to a shared space. In a shared entrance space, there was both the entrance door of the residential house and the stairs to go up to the bedroom (music class). We placed the kitchen under this staircase.
Since the project was very small and for a family, in the very first stage of design, we tried to consider interior design topics along with architectural design process.
-


space usage / entrances diagram
Underground use with 80% occupancy: a women's hair salon with an independent entrance
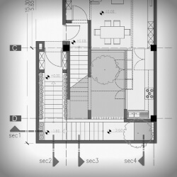
Ground floor: an entrance space and a one-bedroom residential house.
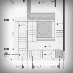
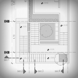
Upper floor: a bedroom. it is used as a private music class during the day.
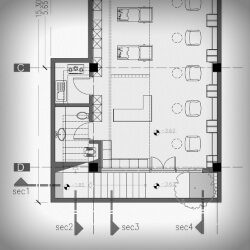
Ground floor, A one-bedroom residential house
Ground floor, A one-bedroom residential house
Ground floor, A one-bedroom residential house
Ground floor, A one-bedroom residential house
Ground floor, kitchen of the residential house
Ground floor, bedroom of the residential house
Ground floor, bedroom of the residential house
Upper floor, a bedroom that is used as a private music class during the day.
Underground, a women's hair salon with an independent entrance
Underground, a women's hair salon with an independent entrance



-
-
-
-




























