Renovation & interior design in kadoos residence go back to all projects
-
design process
A small one-bedroom residential unit on the top floor, A attic one , Located in a residential complex ... it had a high and sloping ceiling.
The entrance of this unit was in such a way that it had a view of the interior space. Also, the entrance space was not defined and the toilet was located next to the kitchen.
So at the beginning, it was necessary to think about entrance space.
Since this unit had a small area, The entrance space reduced the living area. The living room itself was small
At the same time, The employer had a not so easy request: Please add a sleeping space for my guests to my small sixty-meter house.
The question and challenge of the project was : is there a way to make useful use of this high ceiling and attic space? Is there a way to have a suitable entrance space? And it had a suitable closet , and at the same time, it didn't reduce the living space?
The solution was that : By taking advantage of the high height of the attic, a sleeping space for guests was added to it, and the entrance space was also defined below it.
-
Initial state, before design
-
Initial state, before design
-

Phase 0
A small living area and a room are placed in front of the kitchen.
Lack of spatial separation and no designated entry zone. -

Phase 1
Spatial organization with functional separation and improved cross-ventilation.
The bedroom is relocated, and the living area is expanded to receive natural light from both sides. -

Phase 2
A floor slab was introduced above the entrance area, making use of the available height.
A new area ( a bedroom) is introduced, making efficient use of the available vertical space. -
-
-
-
-

-

-
-
before design, initial state
-
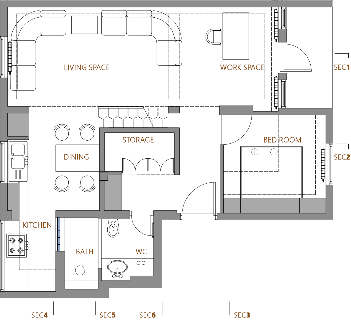
The plan , after interior design & renovation
-
The plan of the sleeping space added to the attic
-
-























