A house surrounded by neighbors, Babol, Mazandarango back to all projects
-
about this project
The project was located in a place surrounded by neighboring buildings... and only had a narrow alleyway for entrance.
We should have designed the building in such a way that the interior spaces have sunlight and a good view.
At first, we decided to place a courtyard in the center and arrange the spaces around it. We did this and got a good result. All the rooms had a view to the central courtyard and the tree that was there. There was not only sunlight but also good visibility.
But there was a problem: the municipality considers this central courtyard or patio as part of the building
We were looking for a way to preserve the idea of that tree and not to destroy the feeling of the central courtyard and the tree.
Placing the yard in a place other than the center was not a problem for the municipality. So we did it. But there was a view of the surrounding buildings from both sides. We had to find a way to control this view.
Our solution was to use a transparent wall. which has colored transparent plates in its walls... and embellishes the view of the surrounding buildings. Finally, we used these colored transparent plates in other places of the building.
-
-
-
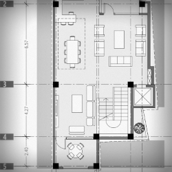
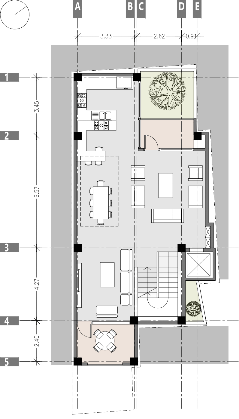
ground floor plan
-
first floor plan
-
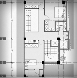
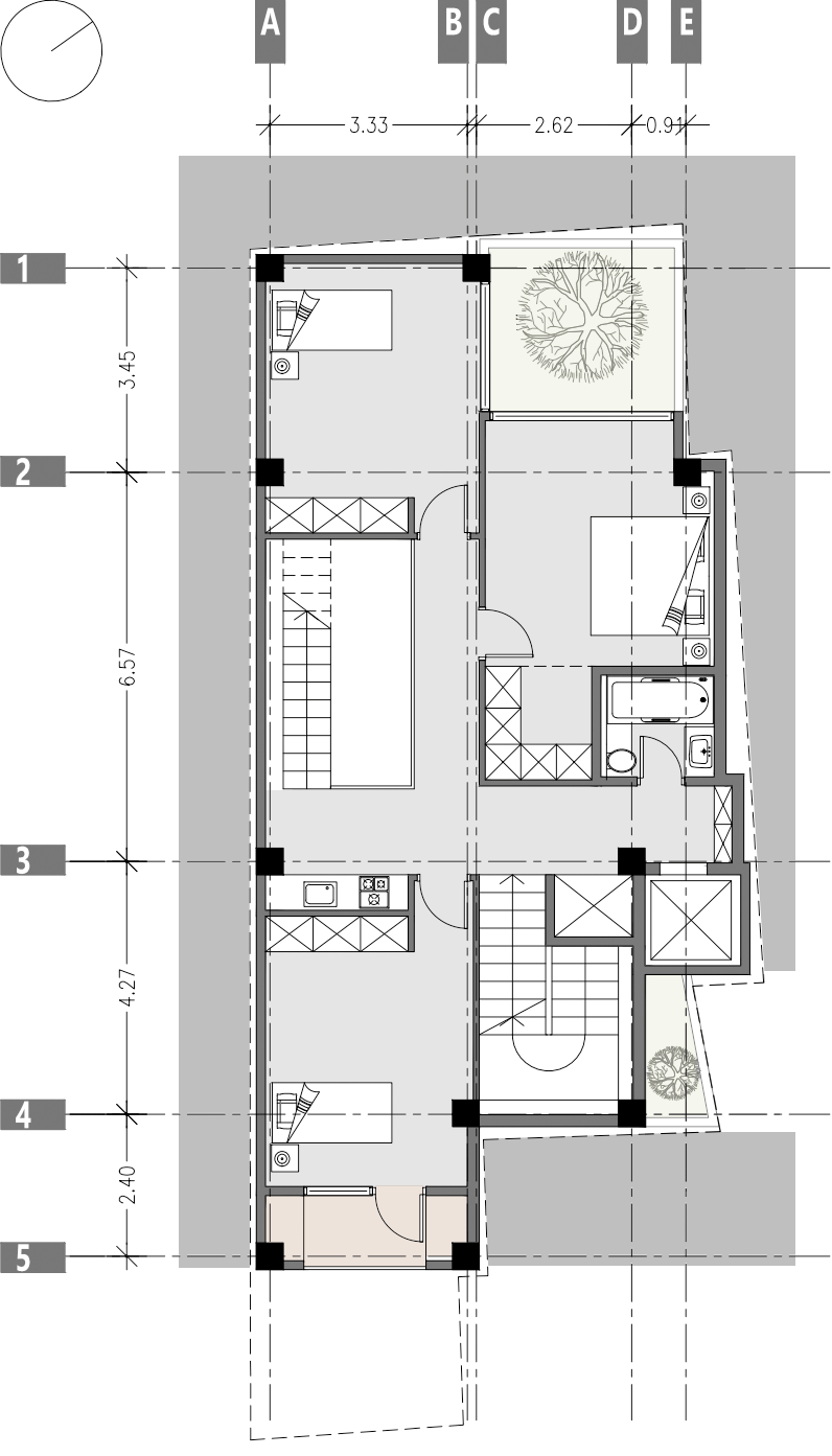
second floor plan
-




-


-

-
-



-



















