Apartment in GolestanShomali st.go back to all projects
-
About the Project
Initially, we began the design process by asking this question: Given that we necessarily have to include two staircases and two elevators, which take up a considerable amount of the building's area, can we find an alternative use for the stairs beyond their conventional vertical connectivity role? Especially considering that, with the presence of elevators, the stairs are seldom used...
By asking this question, we initiated the project design process.We allocated large balconies for each floor, controlling their views and privacy, and shaped the building's volume based on the filled and empty spaces of these balconies, as well as the skyline of the neighboring buildings.
Ultimately, our response to the initial question was to create open and green spaces within the stairwells: combining the open space with the staircases allowed residents to use these stairs more effectively, possibly even incorporating daily exercise.
Finally, we utilized the stairs and the created vertical green spaces to separate the western and eastern units. Additionally, by angling these elements, we provided a suitable view for the balcony of the western unit.

Stage 0
An ordinary building with a staircase box.The Question is: Can we find an alternative use for the stairs beyond their conventional vertical connectivity role?
Stage 1
Before addressing the question, it was necessary to add large balconies to each unit and evaluate their impact on the building's volume and form.
Stage 2
Adjusting the arrangement of volumes based on the skyline of the northern and opposite neighbors.
Stage 3
Adjusting the arrangement of volumes based on the skyline of the western neighbor.
Stage 4
Since the balconies of the western units did not have a view of the main street, we adjusted the volume and created a suitable recess to establish a view of the main street.
Stage 5
Since the upper floors could have balconies with a view of the northern Tehran mountains, we created this open view.
Stage 6
Answering the Question Raised in Stage 0
Creating open and green spaces within the stairwells:
This way, residents can exercise daily and make better use of these stairs.
Stage 7
Controlling the View and Privacy of Balconies
Using adjustable shaders.




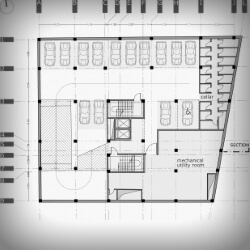
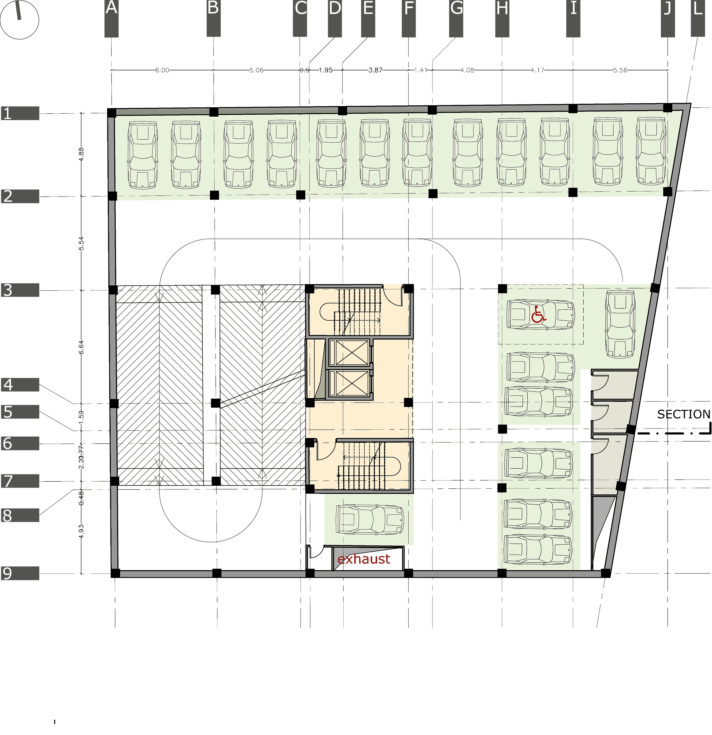
5th basement (-5) floor plan
typical basement (-4 , -3 & -2) floor plan
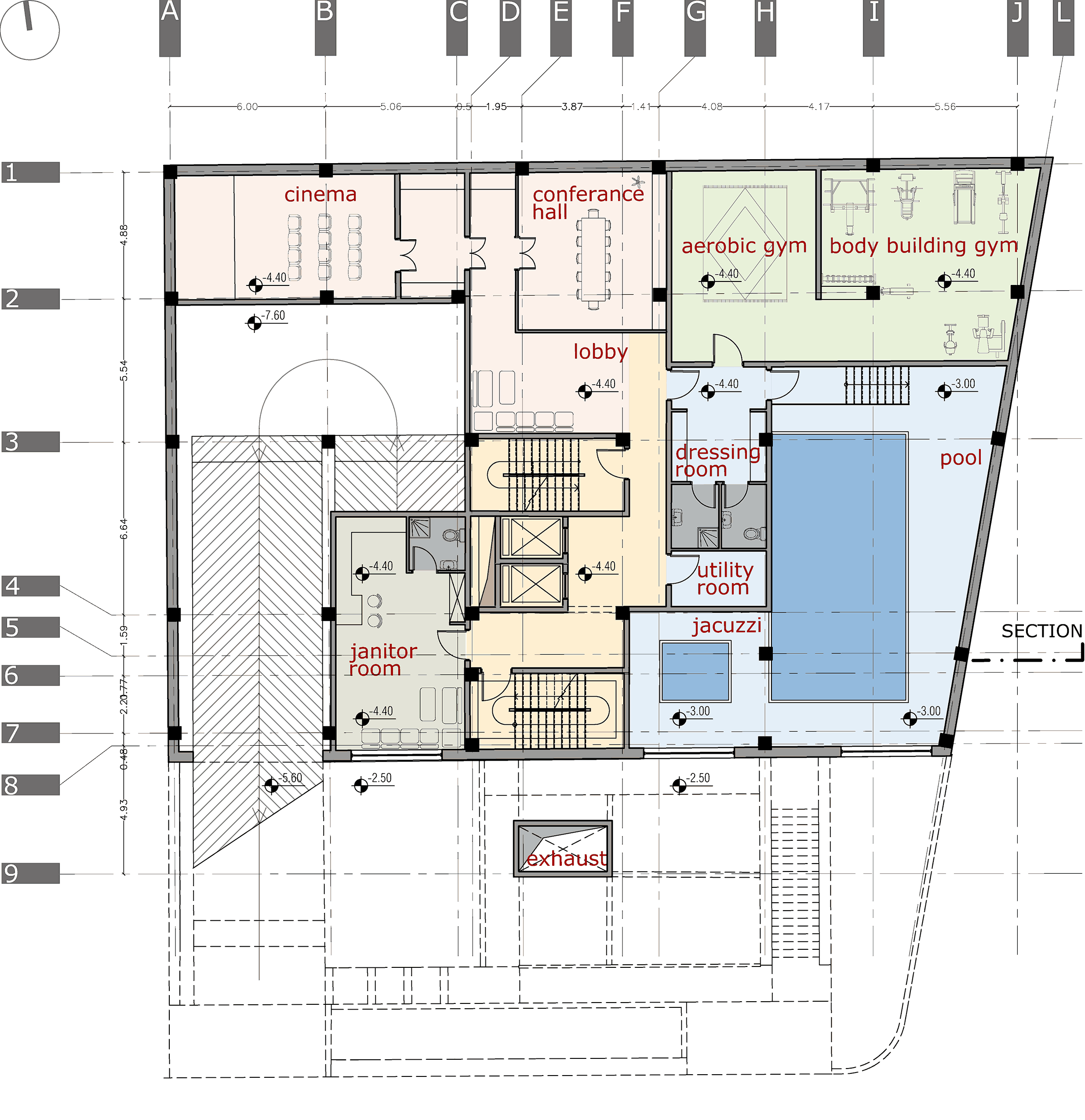
pool basement (-1) floor plan
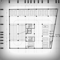
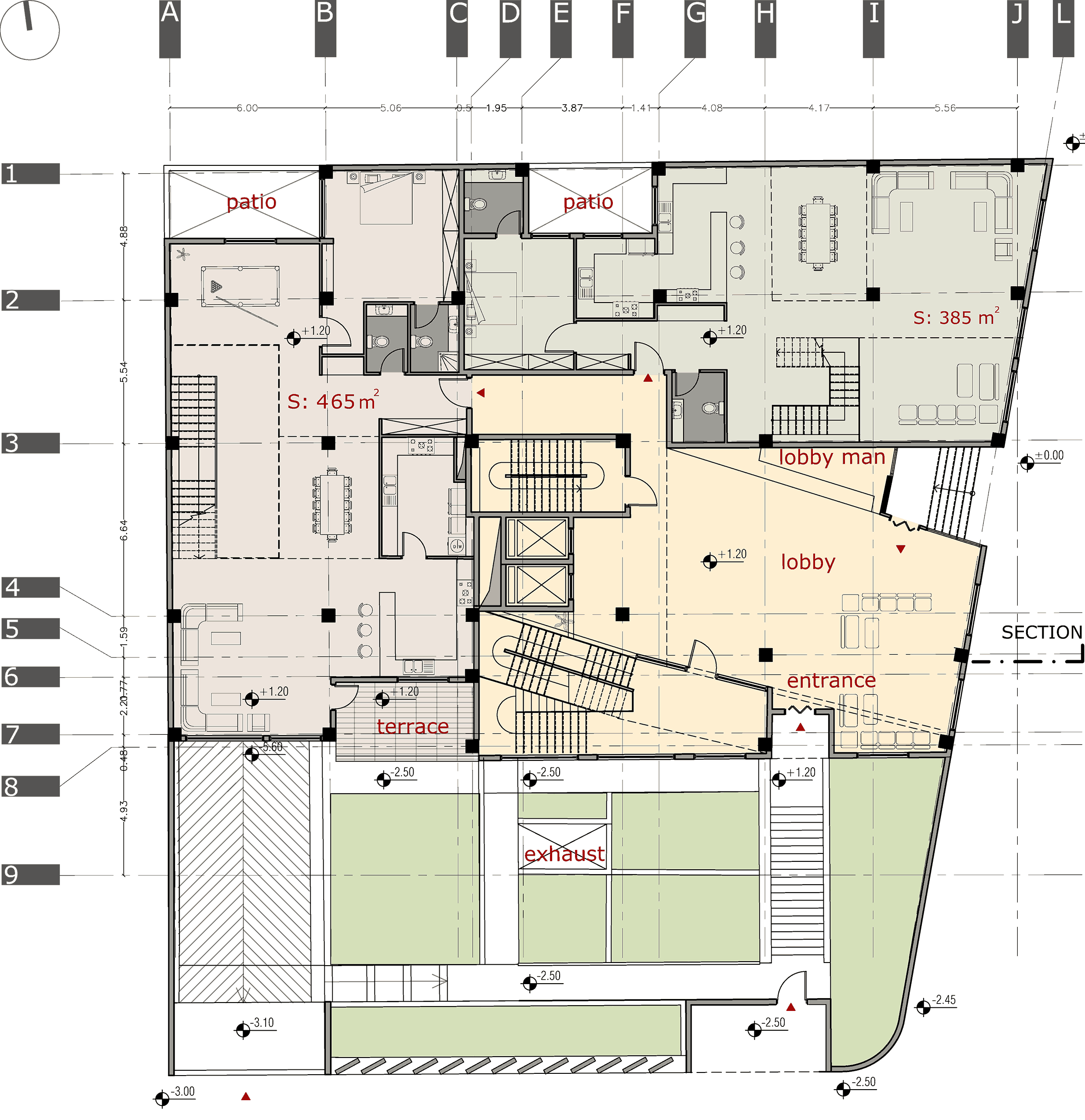
ground floor plan
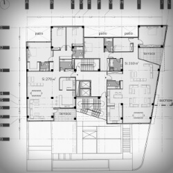
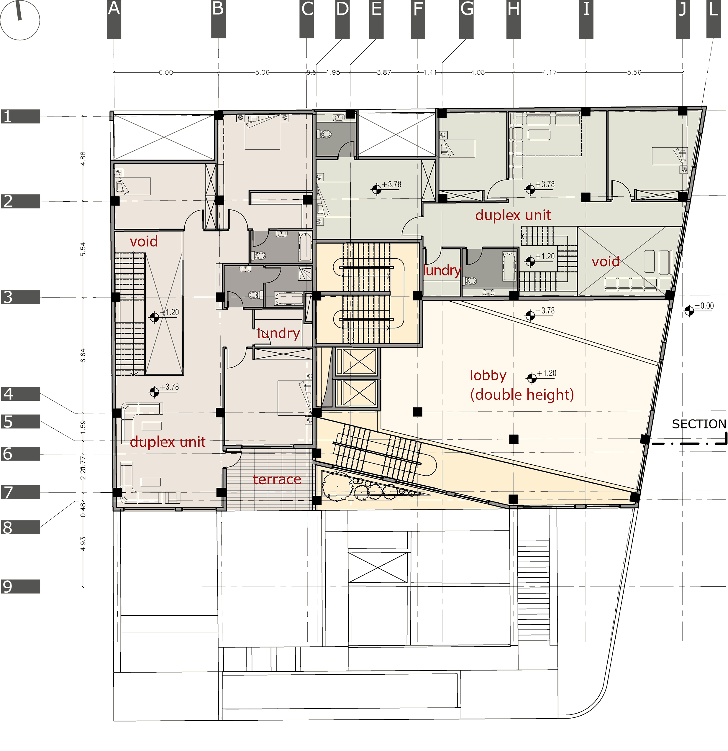
first floor plan
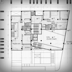
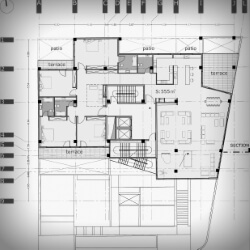
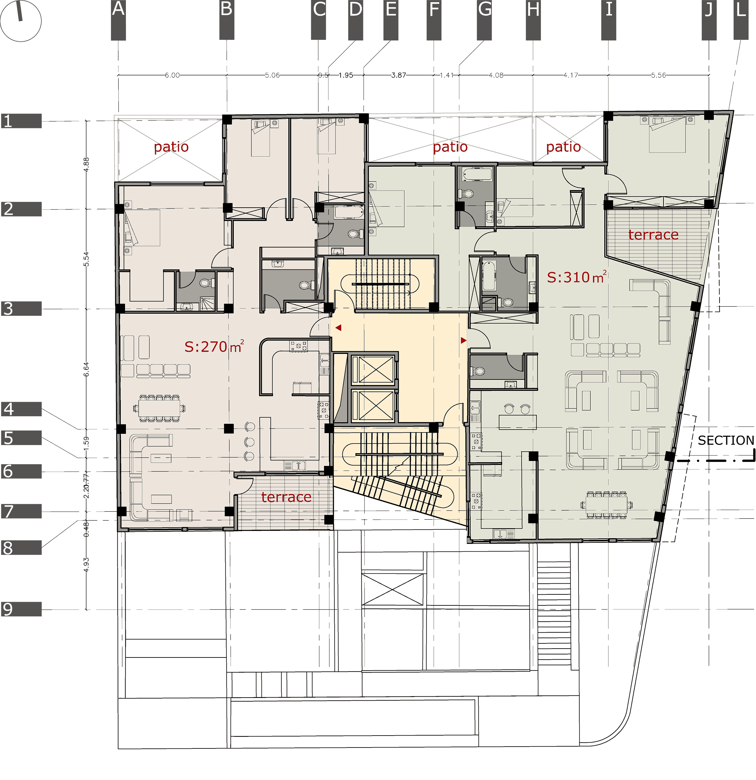
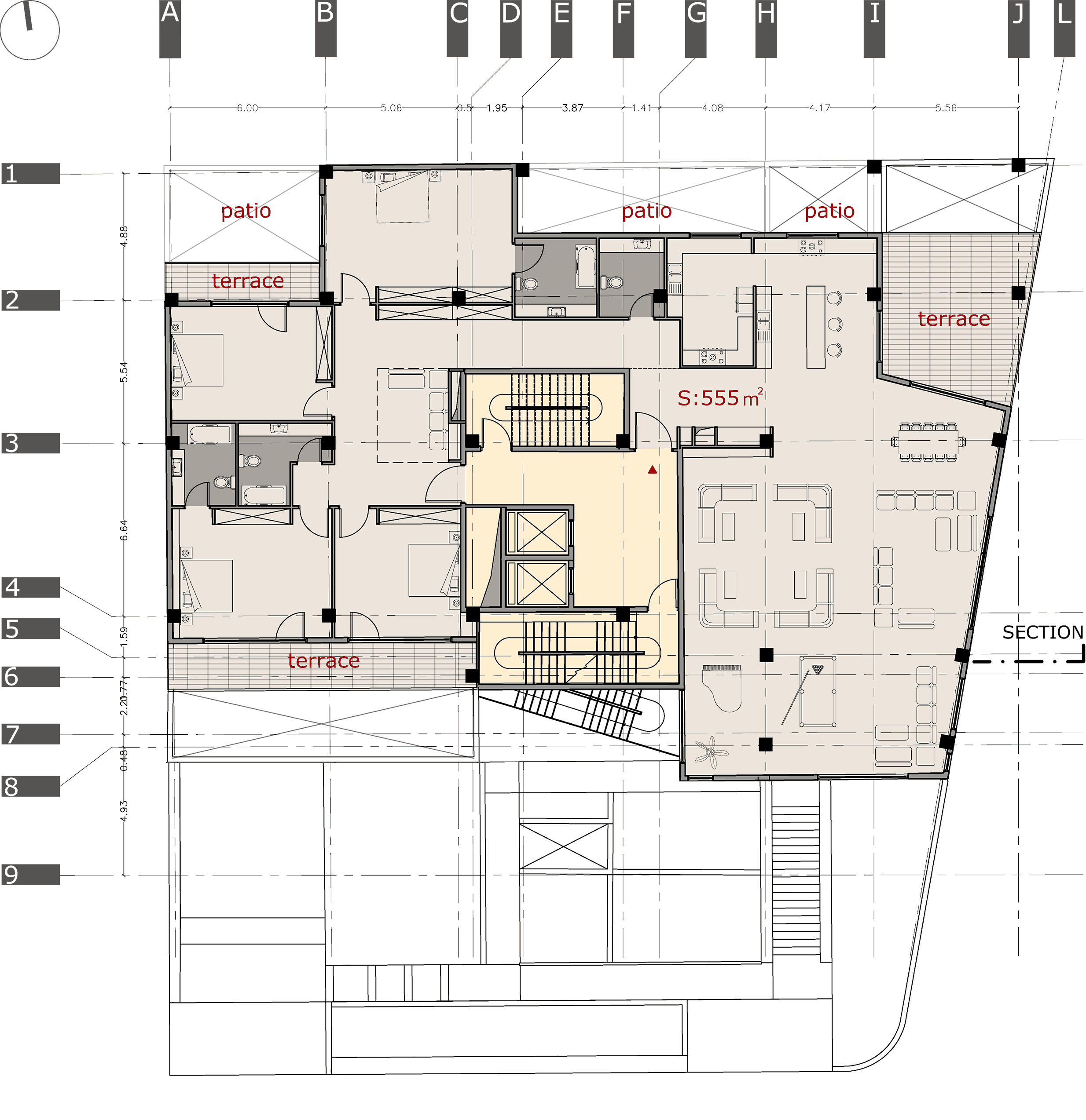
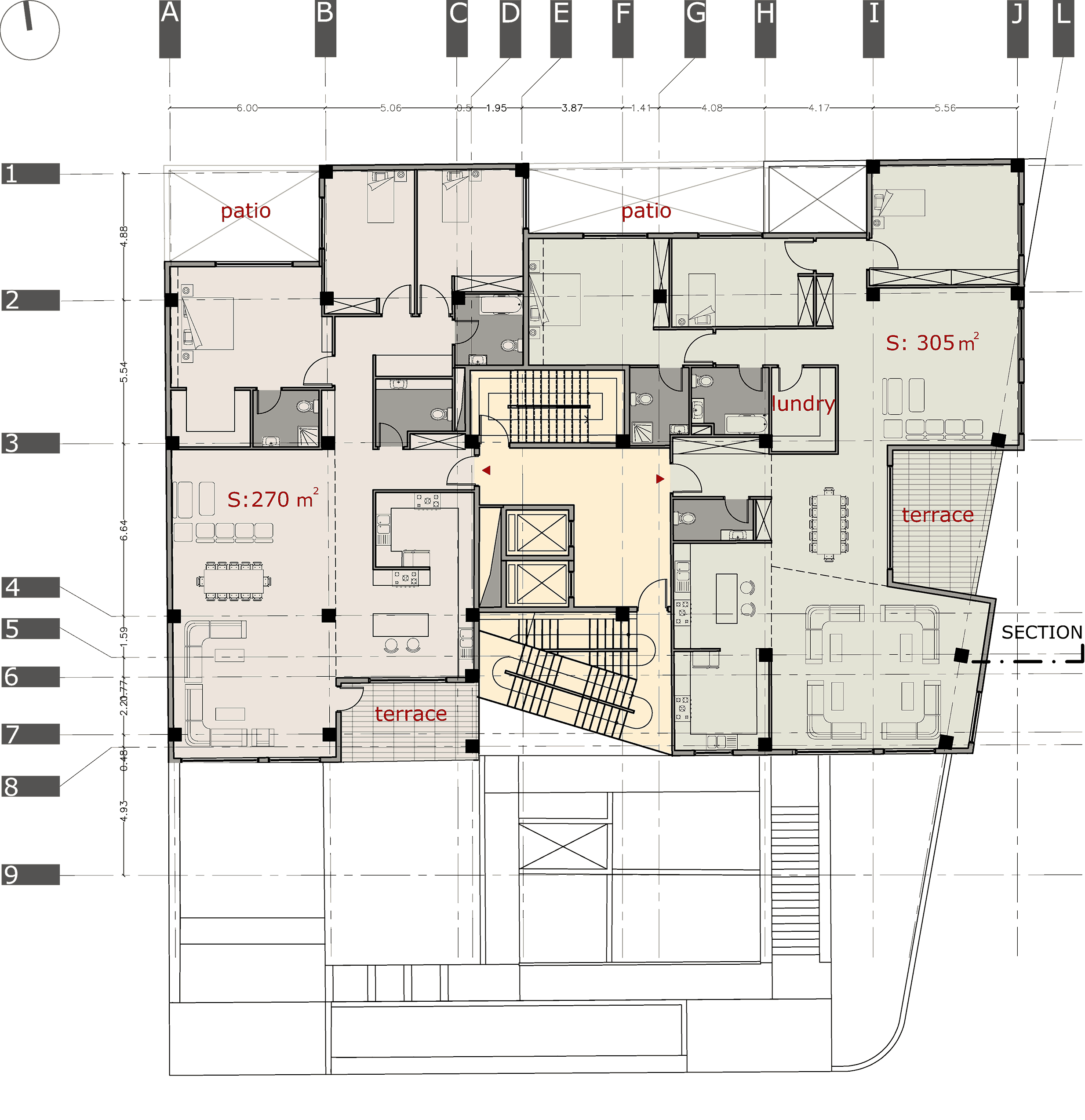
typical floor (2, 3, 4, 5, 6) plan
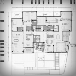
(+7th & +8th ) floor plan
(+9th & +10th ) floor plan
























