Construction Engineering Organization of Ghomgo back to all projects
-
About the Design
The Engineering System is a set of building regulations and standards responsible for ensuring quality in urban construction through engineering tools. If it only focuses on quantity, our cities' appearance will suffer from chaos and disorder, where quality is overshadowed by quantity.
The structure of the Engineering System should be a practical example of the Iranian-Islamic society's values and ideals, influencing other parts of the city toward unity, cohesion, and attention to sustainable and indigenous concepts.
The design concept focuses on qualitative interaction within the engineering environment by creating open and semi-open spaces within the building, providing areas for such interactions. The exterior symbolizes unity and cohesion in society, free from ostentation and self-centered expressions.
In practice, it exemplifies engineering quality objectives in building architecture through open and semi-open courtyards combined with green spaces. By integrating the sky and earth, we aimed to create an inviting form by detaching part of the volume from the ground.




-
Design Objectives
Emphasize the centrality of the Engineering System.
Incorporate green spaces and utilize regional climatic conditions.
Revitalize the central courtyard vertically.
Create visual diversity and movement within the building.
Focus on the concept of unity in diversity.
Separate functions based on activity type.
Open the east-west axis within the building, using greenery and water features for natural wind flow and air circulation.
Optimize the use of light while avoiding direct sunlight.
Create shading and solar chimneys on the southern facade for natural air circulation.
The Engineering System building should be free from ostentation, serving as a model of Iranian-Islamic architecture and culture, preventing urban disorder.
The cube symbolizes unity, coherence, simplicity, comprehensiveness, and completeness.

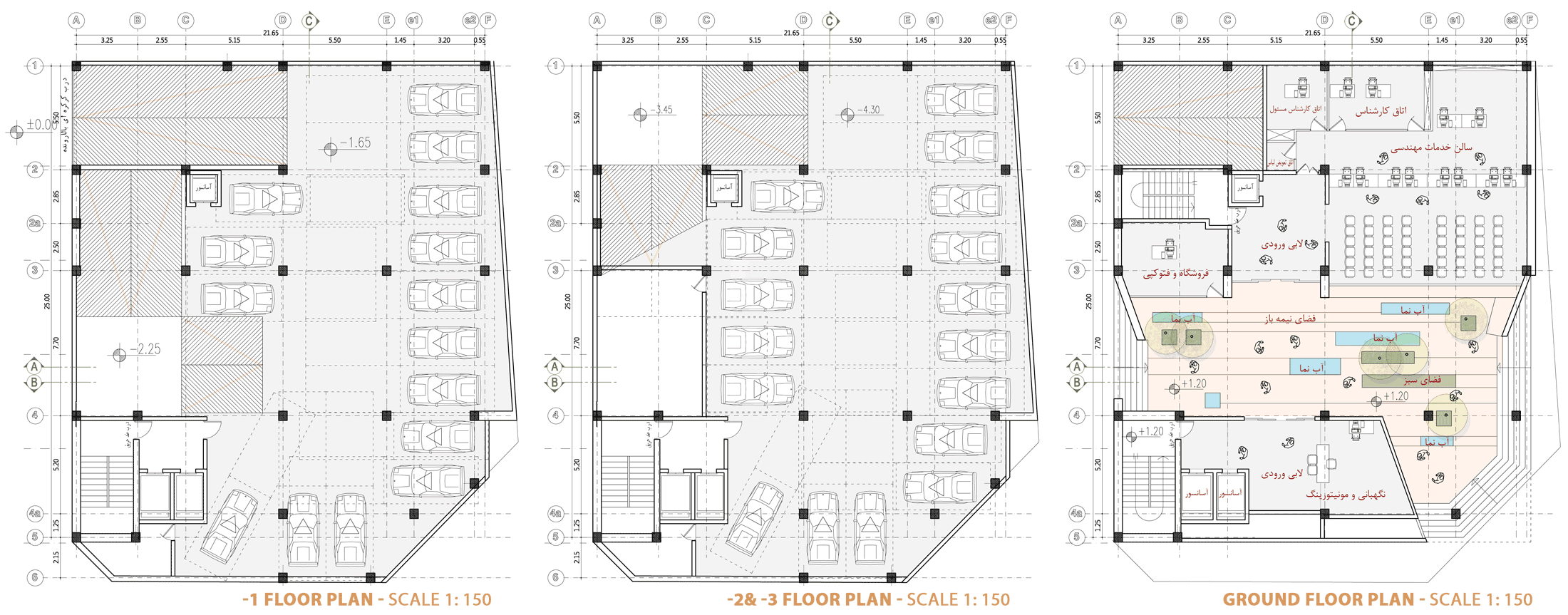
ground floor plan, basement floors plan
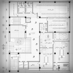
1st, 2nd and 3rd floor plan
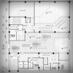
4th, 5th and 6th floor plan



sections













