An apartment near anzali go back to all projects
-
about this project
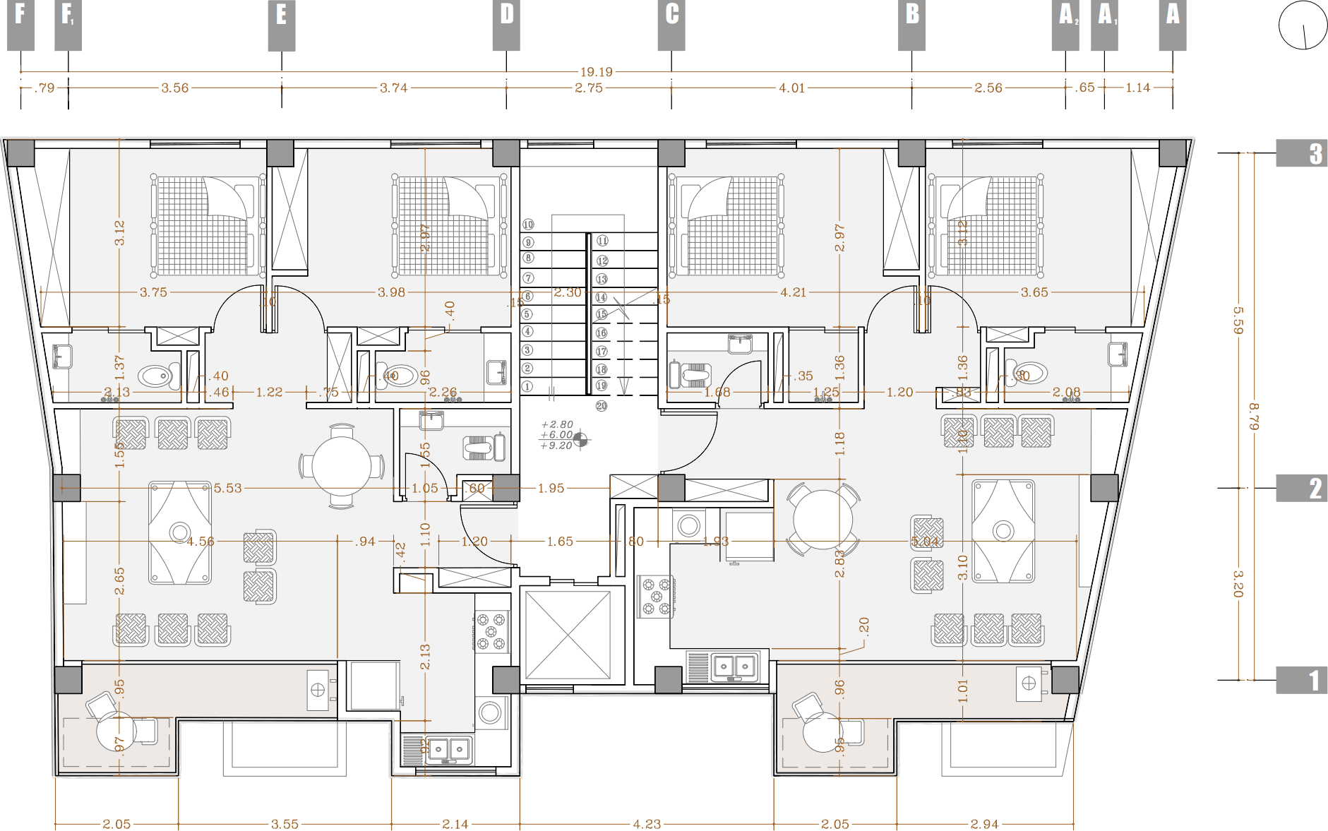
The building, which had already received the necessary permits and was at the foundation construction stage with an approved plan, was brought to us by the client for façade design (not for the layout). The unit sizes were not very large, but due to the beautiful sea view, each unit required large and suitable balconies. Fortunately, these balconies were included in the plan already prepared for the client. However, there was an issue: due to some unknown reason, the units were staggered, and in one of the western units, the presence of the balcony disrupted the balance of the overall area, resulting in a living room with a width of approximately 3.5 meters.
In our first step, instead of immediately designing the façade, we revisited the layout. Although we couldn't change the unit sizes, we could reorganize the spaces without altering the overall footprint and density. We divided the balconies into two sections: a larger section for sitting, smoking, enjoying tea, and admiring the sea view, and a narrower section for other uses like drying clothes.
The elevator in this project was located next to the façade wall but was a typical elevator (a cabin moving in a shaft without windows). Due to financial constraints, installing a panoramic elevator was not feasible. However, adding a window to one side of the elevator was justifiable, so we designed the façade with windows for the elevator.
Finally, since the client desired a completely minimalistic and white façade, we designed the project without using decorations or material play, but by playing with volumes and without using colors, textures, stones, or usual embellishments.

Initial state , Before design
The plan based on which the project was started
-
First step: balancing the areas
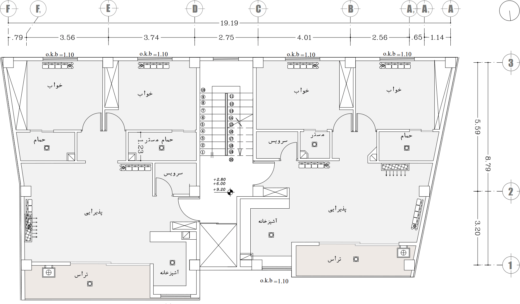
The living room of one of the units was too small. By moving the balcony, the area of that living room was balanced
-
Second step: adjusting the square footage based on the initial area
Since by moving the balcony in the previous stage, the total area of the project would exceed the allowed limit, we adjusted the areas by dividing the balconies into two narrow and broad parts. So that in the broad part, there is the possibility of placing a cofee table and some chairs, and in the narrower part, there is a space for hanging clothes and placing the facilities (Central Heating Boiler pakage ).
Project floor plan after redesign
2nd floor plan

Project floor plan after redesign
1st floor and 3rd floor plan

-
-
-


-
-
-
-
-
-
-
-





































