Alghadir residentail complexgo back to all projects
-
Design strategy:
At first, we arranged different units and forms in different ways. It is requested to estimate the square footage of the units based on the level of occupancy and density.
We continued the work by studying and testing various layouts Among the different options, we chose the option that gave the best answer to the lighting, the nobility of the units to each other, proportions and aesthetics.
At the same time, we had a glimpse of the spirit of architecture and the possibility of implementing creative ideas. We wanted to evolve the design process with new and creative ideas. which was started based on the areas and layout of the units.
Our choice moved towards the options where the building blocks are located at the far end of the northern and southern borders of the site. This placement was such that it provided the maximum distance between the north and south blocks and it minimizes the problem of nobles.
Also, a green space is formed between the two main masses, which itself acted as a neighborhood for the residents of the complex.
In fact, the project was born from a simple cube that was split in different stages. which will be presented in the diagrams. The gap was created to provide lighting for the units.
In the next step, the shell of this cube was made open, semi-open and closed at certain angles to allow adjusting the amount of wind and sunlight.
In the east and west front, the main blocks were designed to be completely closed to prevent the entry of disturbing wind and dust as well as inappropriate sunlight.
First Stage
Starting the design process by subtracting the central courtyard from a cube
Second Stage
Expansion of the central courtyard
Third Stage
Division of masses into two types of first-class (three-bedroom) and second-class units based on the client's wishes
Fourth Stage
Separation of units from each other
Fifth Stage
Truss bridge added (providing the needs of residents for nature and walking)





First basement plan
Ground Floor Plan
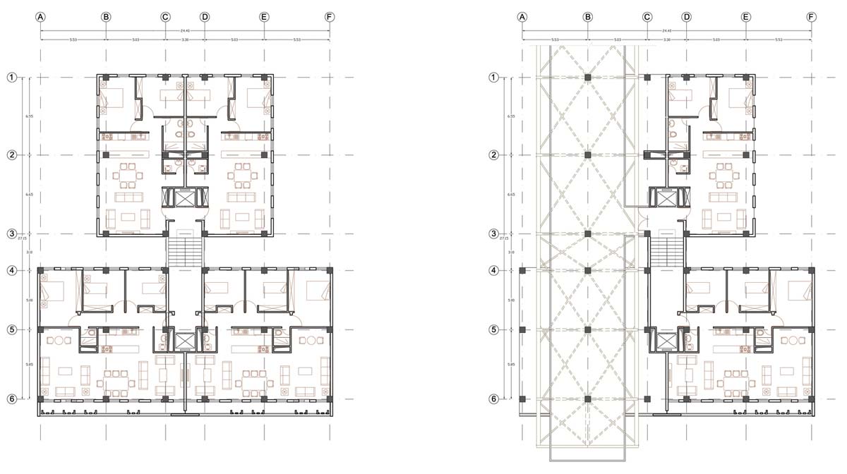
Typical floor plan
Brigade plan of units














