An apartment based on vernacular architecture of Guilan go back to all projects
-
About This project:
The northern region of Iran, is mostly known by lush and green trees. The vernacular architecture of Guilan, a province located in this region, is also associated with wood, large balconies around the buildings, hedges, etc. Rasht, the most populous city in this region, due to the constructions of the last few decades and the emergence of numerous apartments, has taken on a face similar to other more modern cities and has lost its identity.
The designing project that was given to us was originally supposed to be an apartment like the rest of the other apartments. "Apartment" and "country house" are usually two strange concepts here. Concepts are diverging day by day, and in recent decades’ fewer apartments have been built in Guilan province that are in line with the local architecture of the area.
The challenge of the aforementioned project was to exploit the vernacular architecture and restore this lost concept to the building. A building that was supposed to use neither classical nor modern (international) architecture. We wanted to review the forgotten memories as much as possible, both in the form and in the performance, and use the visual and identity elements of the northern region in our design.
At the beginning, we tried to place the mass of the building in such a way that the old trees in the yard were preserved, and at the same time, two ramps (up and down) as well as a pedestrian entrance were located in between.
-
-
-
Design Process:
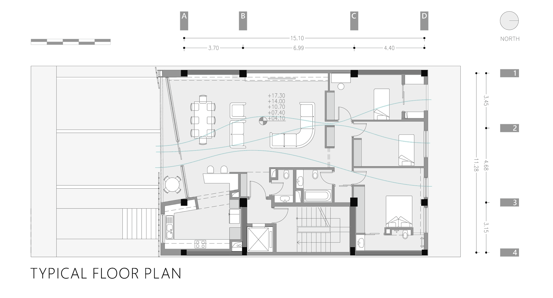
In recent times, most of the people here in Guilan would live in houses with balconies and semi-open spaces. But, now, the dense urban fabric did not allow for a large, elongated porch. And considering the poor view of the neighboring building, which was in the front, it would remain practically unused. Therefore, this view had to be controlled somehow.
To do this, first we rotated the balcony in a way that it could have a good view of the green space at the end of the alley. We also covered the balcony wall with wood. A wall that would evoke the walls and hedges of the vernacular architecture of this area and/or its traditional art of mat weaving. This wooden lattice wall was eventually extended to the whole building and became the foundation of the building's visual form and identity. A form that was used not only in the facade, but also in the whole building.
Since the open space on the ground floor was practically occupied by access roads and ramps, there was no yard or open space left for people to live inside. Therefore, instead of a sloping roof, we used a flat roof and provided the building with an open space and a public green space using a roof-garden.
Because the elevator had access to the roof-garden in this building, the rooftop entrance was high and had two levels. Items such as rooftop entrance are typically considered as bulky and their role in combination with the rest of the building is ignored.
In the design process, by extending the wooden lattice shell (designed to control the view of the balconies) to the sharp roof, and removing a part of the last balcony’s roof, we saw the sharp roof as a mass intertwined with the facade of the entire building. The design of the peripheral spaces continued along with the overall design. The entrance of the complex, the lobby, the parking lot roof and the lighting of that space were also combined with this wooden lattice shell.
-

-
-
-
-
-
-



-
-
-
-
Natural Ventilation
Due to the humid climate of this area, there was a need for natural ventilation, so the corridors and doors of the rooms were positioned in a way that were in line with the wind direction. A narrow opening in a closet located in the hallway helped to establish the natural ventilation.
Finally, in the process of designing the interiors of the units, we decided to make the space as simple and minimal as possible and play around with masses (walls, full and empty spaces) instead of textures (wallpaper, etc.). And we didn’t use hollow wood texture (facade) in order to give the residents the freedom of choosing their own types of furniture, textures and styles of interior design. Finally, the only interior space in which wood texture was used were the restroom and kitchen.
-





















