124 st. residentail aratment go back to all projects
-
about this project
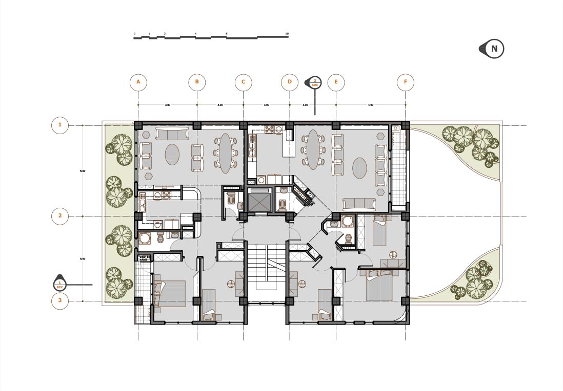
The employer's request for the project was to design two types of units, two-bedroom and three-bedroom, side by side. Each unit needed to have standard zoning, with direct access to the sleeping area from the unit's entrance.
The challenge of the project was to design the units with minimal unusable area, so that potential buyers could make the most out of their residential space.
About the Facade
Since this building's plot is situated at the corner of two side streets, the project's facade design has been conceived not merely as a surface but as a series of interwoven volumes. By extending the circular form of the ground floor to the first and second floors, and integrating it with the cubic form of the fourth and fifth floors, we've achieved a harmonious blend of curved and non-curved surfaces, creating a distinctive and cohesive aesthetic.
Recognizing the unavoidable presence of significant overhangs at the edges of the sloped roofs, we utilized the elongated form of these overhangs as a fundamental design element for the facade. To ensure harmony, similar forms have been incorporated throughout the building's design in various locations.

-

ground floor plan

typical floor plan

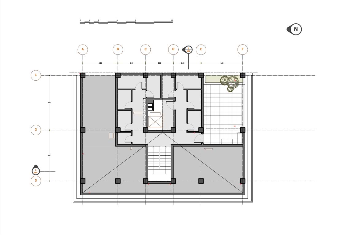
roof floor plan

-

sections
-










