alireza
houbakht


Qazvin Glass Headquarter Office

Ghazvin Glass Headquarter
  • Client Name:
  • Qazvin Glass Company PLC
  • Area:
  • 5000 m2
  • Status:
  • Concept Design Complete 2015
  • Program:
  • Office
  • Designers:
  • Alireza Houbakht,
    Amirhossein Davatgar

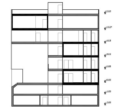
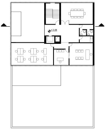
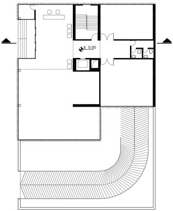
The Qazvin Glass Co. required a renovation and transformation of their existing head office building in Sarafraz st, Tehran. The client intends to provide a more sufficient interior space and also iconic façade which help the office to become a landmark in the urban environment.

Stacked and expanded upwards into a 15 meter high and 4 levels, the proposed new Qazvin Glass Headquarter Office Complex takes a unique materiality in façade which exhibits distinct aspects of glass as the main product of the company. Creating a semitransparent façade, the ribbed vertical glasses on façade connect exterior and interior in an artistic way. On the other hand the stacked office units create extraordinary voids and between spaces which make interior more transparent and integrated. As a consequence, the building is ordered as a big public plaza defined by a border of the semitransparent facade and the stacked office boxes, both represent the company and their products.